Résidence en cours de travaux à AVRILLE pour fin 2026 : Seulement 15 minutes de l’hypercentre d’Angers grâce au tramway accessible à 300 mètres. Commodités à pied. Le programme propose un habitat diversifié, allant du studio au 5 pièces, ainsi que des maisons avec jardins privatifs. Certifié NF Habitat, ce programme allie(…)
Résidence en cours de travaux à AVRILLE pour fin 2026 : Seulement 15 minutes de l’hypercentre d’Angers grâce au tramway accessible à 300 mètres. Commodités à pied. Le programme propose un habitat diversifié, allant du studio au 5 pièces, ainsi que des maisons avec jardins privatifs. Certifié NF Habitat, ce programme allie confort urbain et douceur de vivre avec une omniprésence du végétal.
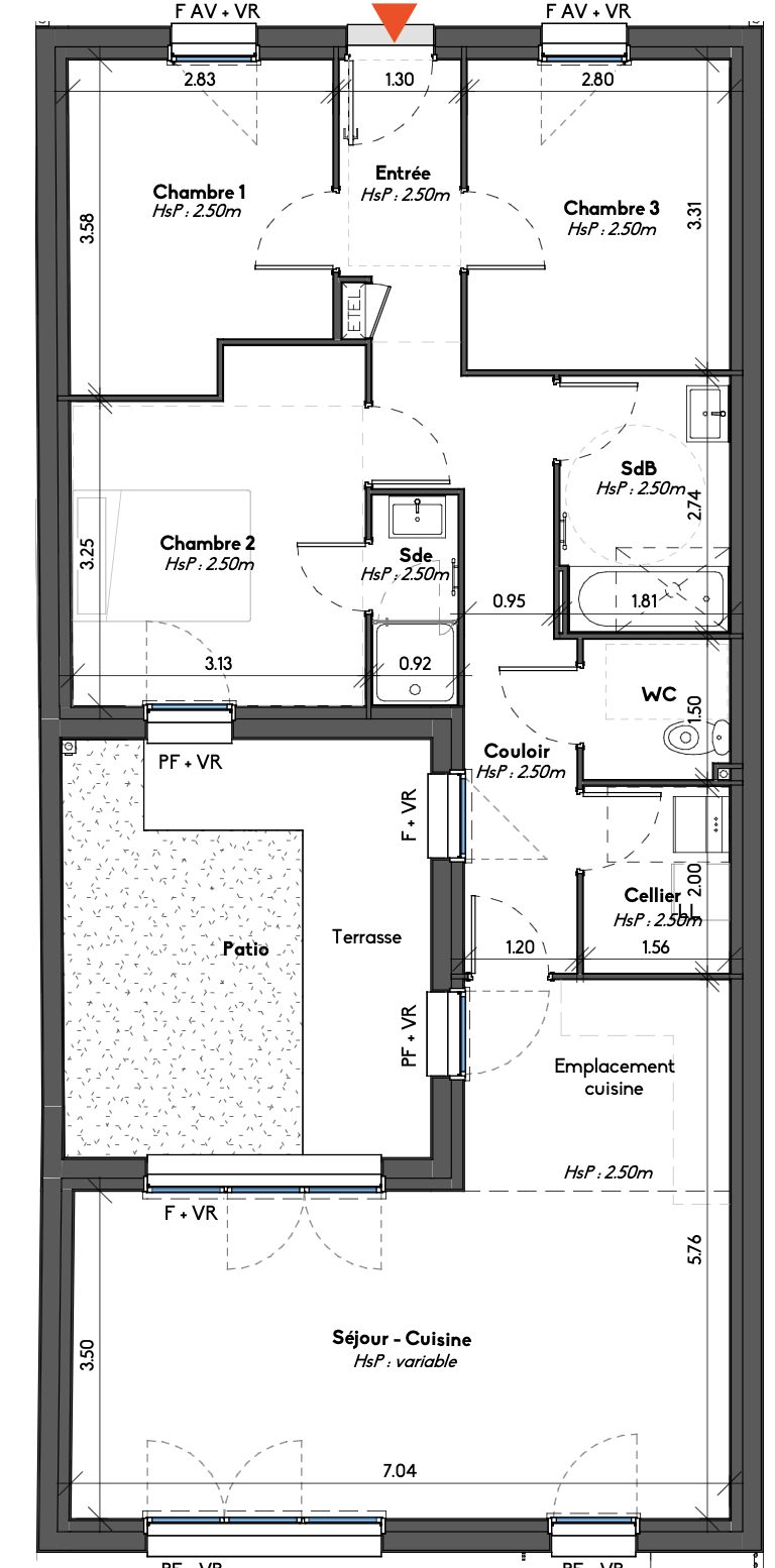
Maison plan pied avec jardin, patio et terrasse intérieurs : – Séjour 31m2 double expo donnant accès au jardin et patio, cellier, dégagements – Chambre parentale 11m2 avec salle d’eau attenante donnant sur le patio, deux autres chambres 9,33-9,27m2 – Salle de bains, wc séparé, entrée – Stationnement inclus.
Nous consulter.
Honoraires à la charge du vendeur. DPE en cours. Les informations sur les risques auxquels ce bien est exposé sont disponibles sur le site Géorisques : georisques.gouv.fr.
Votre conseiller MON BIEN A LA MER : Gérant – .fr MON BIEN A LA MER Carte T CPI 2201 2018 000 025 040 RCP ACM IARD B1 7025278