Jolie résidence neuve achevée, en frais de notaire réduits, prête à habiter. 5 min en voiture de la Gare de CHATEAUBOURG, entre 3 et 7 des commerces, école, collège.
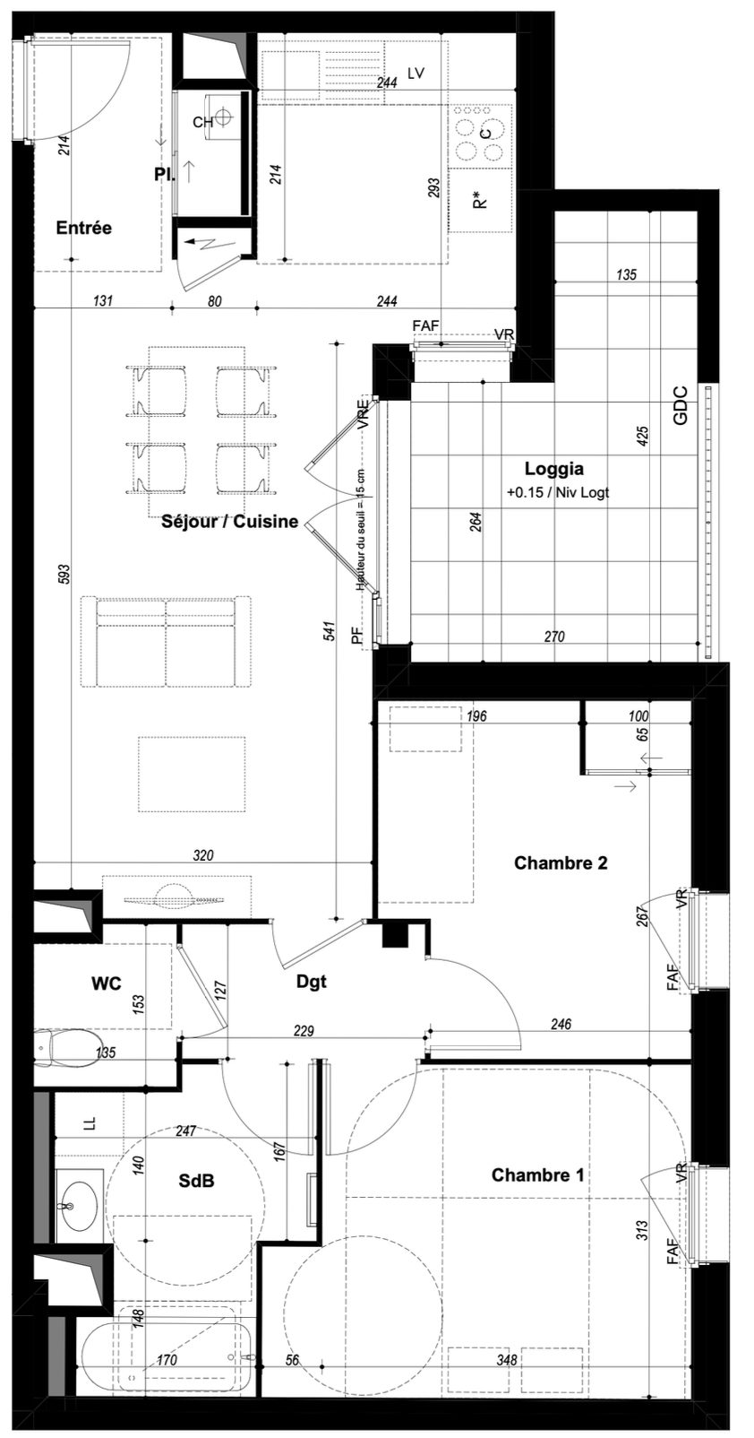
Ce T3 est situé en retrait de la route, très calme : – Séjour/entrée 29m2 donnant sur une belle loggia de 9,31m2 – Deux chambres(…)
Jolie résidence neuve achevée, en frais de notaire réduits, prête à habiter. 5 min en voiture de la Gare de CHATEAUBOURG, entre 3 et 7 des commerces, école, collège.
Ce T3 est situé en retrait de la route, très calme : – Séjour/entrée 29m2 donnant sur une belle loggia de 9,31m2 – Deux chambres 11,75-9,28m2 – Salle de bains meuble vasque sèche serviette – wc séparé – Placards – Parking sous sol inclus.
Nous Consulter
Honoraires à la charge du vendeur. Classe énergie C, Classe climat C Montant estimé des dépenses annuelles d’énergie pour un usage standard : entre 474.00 et 651.00 sur les années 2021, 2022 et 2023 (abonnements compris). Les informations sur les risques auxquels ce bien est exposé sont disponibles sur le site Géorisques : georisques.gouv.fr.
Votre conseiller MON BIEN A LA MER : Gérant – .fr MON BIEN A LA MER Carte T CPI 2201 2018 000 025 040 RCP ACM IARD B1 7025278