L’Agence MON BIEN A LA MER, Spécialiste du neuf en Bord de Mer, vous présente :
Sur la presqu’ile de Fouras, à 5 min en vélo des commerces et plages, petite Résidence en construction. RE2020 et NF HABITAT. Chauffage électrique et ballon thermodynamique. Frais de notaire réduits. Livraison 2è semestre 2027.
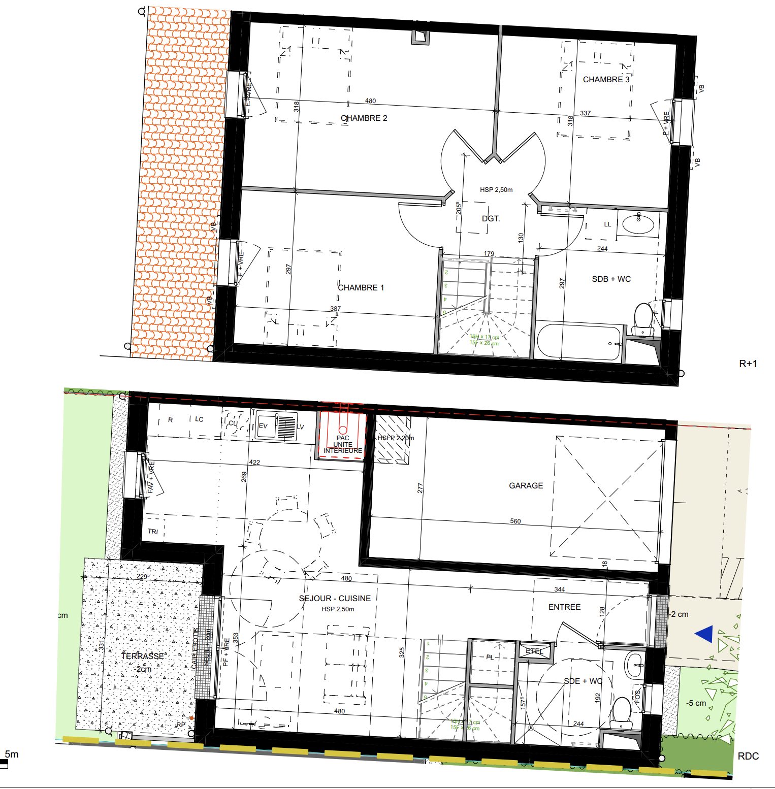
Maison T4(…)
L’Agence MON BIEN A LA MER, Spécialiste du neuf en Bord de Mer, vous présente :
Sur la presqu’ile de Fouras, à 5 min en vélo des commerces et plages, petite Résidence en construction. RE2020 et NF HABITAT. Chauffage électrique et ballon thermodynamique. Frais de notaire réduits. Livraison 2è semestre 2027.
Maison T4 tout finie (sauf cuisine) : peintures, salles d’eau, sols, faïence, jardin engazonné et clôturé : – Séjour + entrée 30m2 expo sud ouest, salle d’eau, wc, garage, terrasse et jardin 60m2 au rez de chaussée – A l’étage : 3 chambres 14,78-11,49-10,32m2, salle de bains, wc.
Nous Consulter
Honoraires à la charge du vendeur. Non soumis au DPE. Les informations sur les risques auxquels ce bien est exposé sont disponibles sur le site Géorisques : georisques.gouv.fr.
Votre conseiller MON BIEN A LA MER : Gérant – .fr MON BIEN A LA MER Carte T CPI 2201 2018 000 025 040 RCP ACM IARD B1 7025278