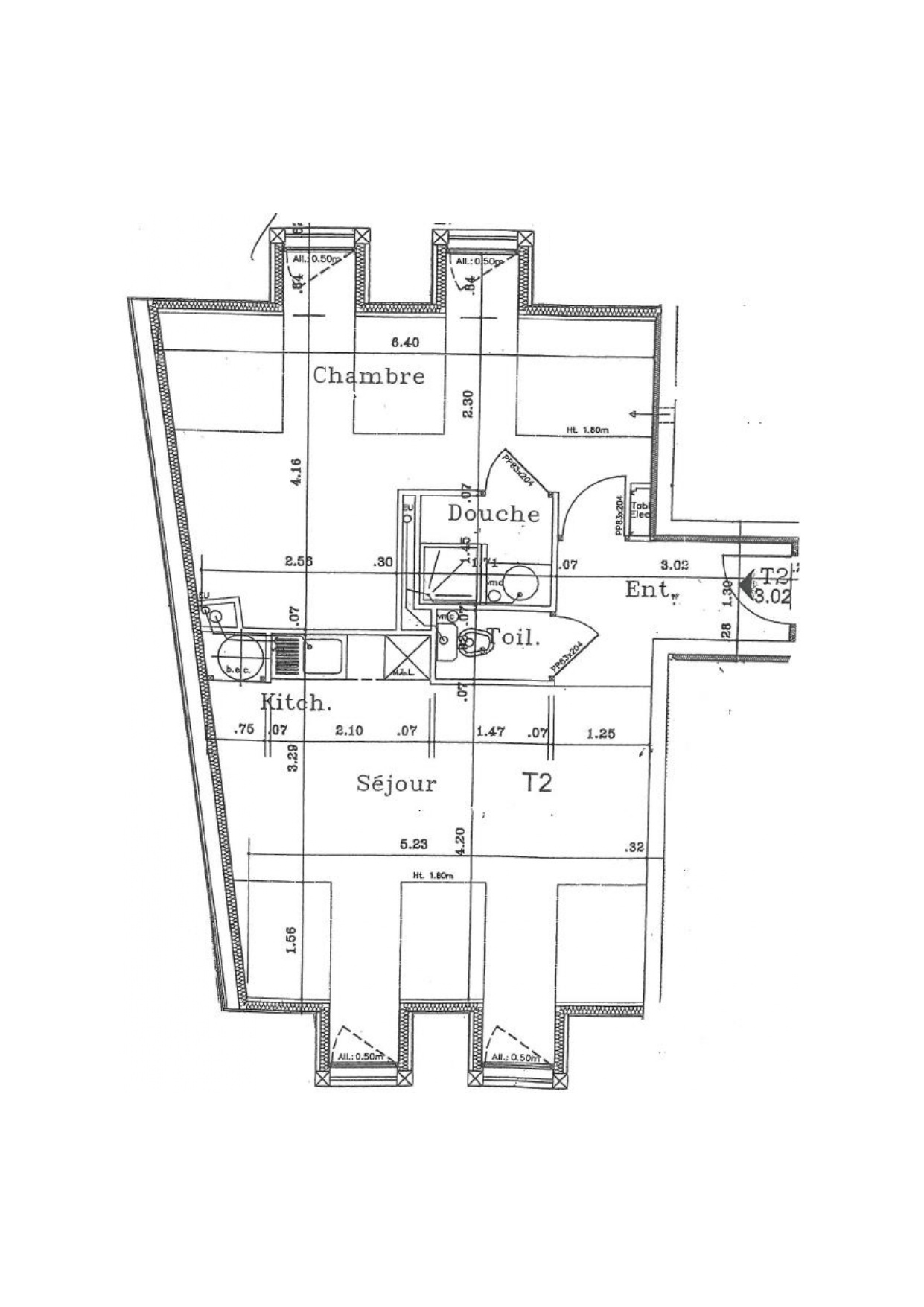
Un appartement de type T2 en dernier étage avec vue imprenable sur le port comprenant:
Entrée, pièce de vie avec cuisine équipée, une chambre, salle d’eau, water-closet.
Un parking privatif.
En parfait état – RARE!
DPE
Logement économe
Faible émission de GES
Caracteristiques
- Surface habitable : 43 m2
- Nombre de chambres : 1
- Nombre de pièces : 2







