MON BIEN A LA MER, Spécialiste de l’immo neuf en bord de mer, vous présente :
TRAVAUX EN COURS – Petite résidence de standing neuve en livraison pour mi 2027. 21 lots. Coeur de ville : tous commerces à proximité, baie de Plouharnel à 500m Ascenseur, Normes RE2020. Frais de notaire réduits.
Spacieux T2(…)
MON BIEN A LA MER, Spécialiste de l’immo neuf en bord de mer, vous présente :
TRAVAUX EN COURS – Petite résidence de standing neuve en livraison pour mi 2027. 21 lots. Coeur de ville : tous commerces à proximité, baie de Plouharnel à 500m Ascenseur, Normes RE2020. Frais de notaire réduits.
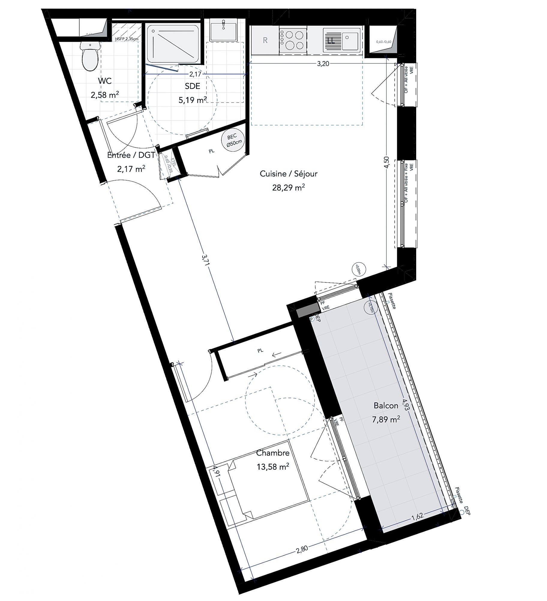
Spacieux T2 avant dernier étage comprenant :
– Grand séjour 28,29m2 avec coin cuisine – terrasse 7,89m2 donnante sur le séjour et la chambre, – chambre 13,58m2 – salle d’eau avec douche italienne, meuble vasque, sèche serviette – wcs suspendus séparés, volets roulants électriques, placards – parking inclus
Nous Consulter
Honoraires à la charge du vendeur. Non soumis au DPE. Les informations sur les risques auxquels ce bien est exposé sont disponibles sur le site Géorisques : georisques.gouv.fr.
Votre conseiller MON BIEN A LA MER : Gérant – .fr MON BIEN A LA MER Carte T CPI 2201 2018 000 025 040 RCP ACM IARD B1 7025278