– TRAVAUX EN COURS – Petite résidence de standing neuve en livraison pour 1er semestre 2027. 32 lots. Emplacement recherché quartier Fougères / Jeanne d’Arc / Volney. Frais de notaire réduits. Ascenseur, volets roulants électriques, wc suspendus, menuiseries alu bicolore, parquet.
– TRAVAUX EN COURS – Petite résidence de standing neuve en livraison pour 1er semestre 2027. 32 lots. Emplacement recherché quartier Fougères / Jeanne d’Arc / Volney. Frais de notaire réduits. Ascenseur, volets roulants électriques, wc suspendus, menuiseries alu bicolore, parquet.
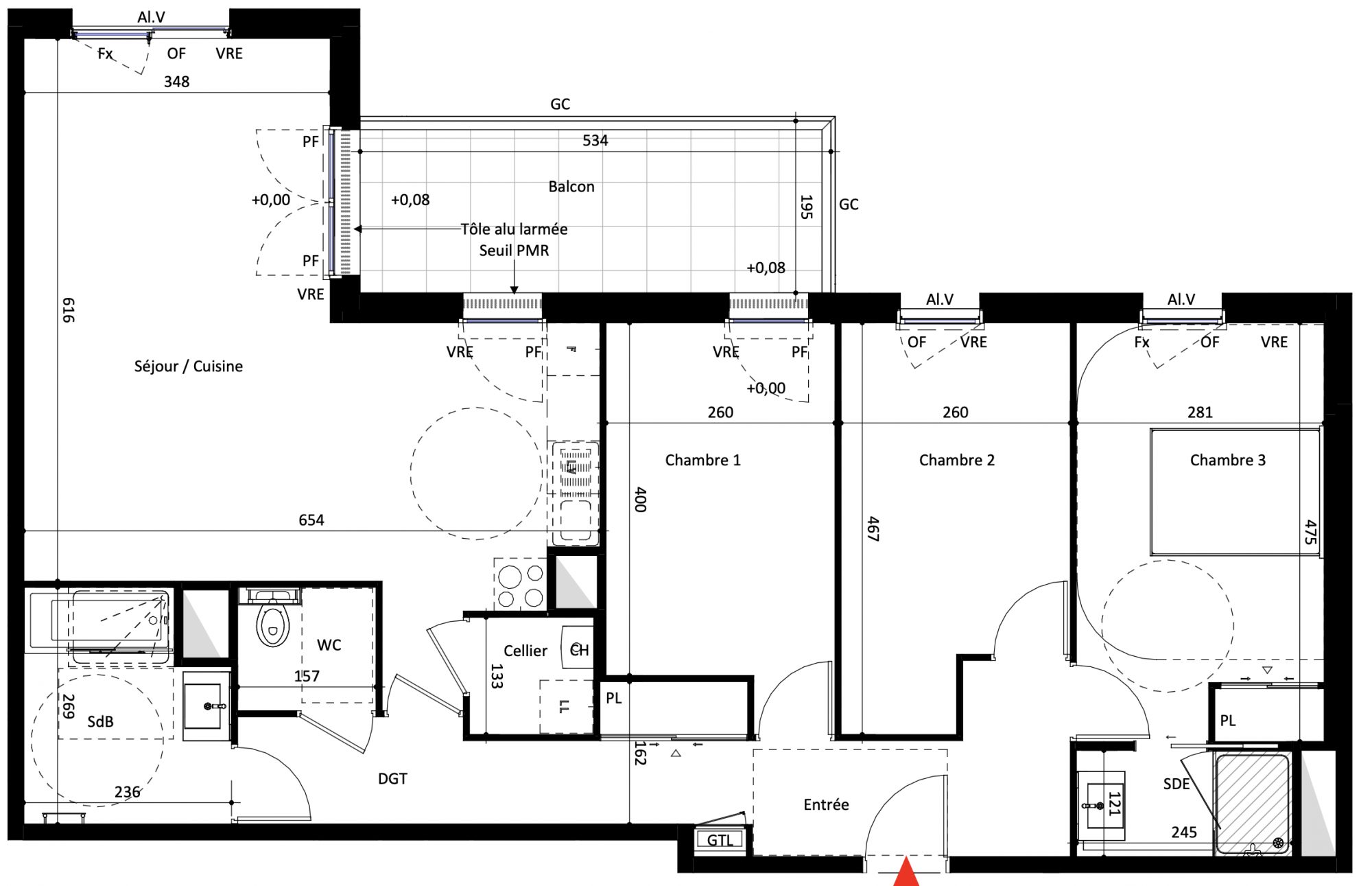
Spacieux T4 expo Sud-Ouest comprenant :
– Entrée, dégagement, wc séparés, cellier, Séjour 31,83m2, – Terrasse 10,41m2 donnant sur le séjour et une chambre de 11m2 – 2è chambre de 10,97m2 et une suite parentale avec placard de 13,3m2 avec salle d’eau attenante. – Salle de bains, placards – Double parking inclus.
Nous Consulter
Honoraires à la charge du vendeur. Non soumis au DPE. Les informations sur les risques auxquels ce bien est exposé sont disponibles sur le site Géorisques : georisques.gouv.fr.
Votre conseiller MON BIEN A LA MER : Gérant – .fr MON BIEN A LA MER Carte T CPI 2201 2018 000 025 040 RCP ACM IARD B1 7025278