MON BIEN A LA MER, Spécialiste de l’immobilier neuf sur les Côtes Bretonnes, vous présente :
Une situation idéale : superbe résidence de standing à 10 min à pied de la Plage de Conleau, 5 min du Parc du Golfe, 15 min du Port de Vannes. Bâtiment basse consommation RE2020 : isolation(…)
MON BIEN A LA MER, Spécialiste de l’immobilier neuf sur les Côtes Bretonnes, vous présente :
Une situation idéale : superbe résidence de standing à 10 min à pied de la Plage de Conleau, 5 min du Parc du Golfe, 15 min du Port de Vannes. Bâtiment basse consommation RE2020 : isolation thermique et phonique renforcée. Label biosourcé niveau 3 et labellisation BBCA. Frais de notaire réduits, ascenseur, parquet contrecollé, faïence et carrelage PORCELANOSA, prise pour voiture électrique sur tous les logements. Livraison mi 2027.
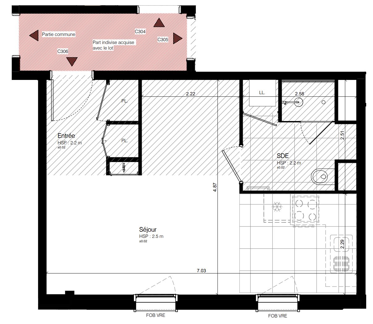
T1bis situé au dernier étage et exposé Ouest :
– Séjour avec coin nuit 22,7m2 – Salle d’eau douche à l’italienne, wc suspendus, meuble vasque, sèche serviette, placard à machines. – Entrée, placards, cellier
Nous consulter.
Honoraires à la charge du vendeur. DPE en cours. Les informations sur les risques auxquels ce bien est exposé sont disponibles sur le site Géorisques : georisques.gouv.fr.
Votre conseiller MON BIEN A LA MER : Gérant – .fr MON BIEN A LA MER Carte T CPI 2201 2018 000 025 040 RCP ACM IARD B1 7025278